Construction documents are prepared for the following countries:

House Plan: 1586 ft², 1.5 Stories, 2 Beds, 1.5 Baths, Open Floor Plan, 2-Car Garage

Plan
83682R
Complete
Signed & Sealed
DC Available
Key Specs
147
Total Heated m²
1 + 1
Baths + 1/2 Baths
2 + 0
Beds + Home Office
2
Cars
111

222

Need to make some changes?

This house plan can be modified to fit your family’s lifestyle and your lot’s specifics.

The architect of this plan is not from your country.

If you would like to modify this house plan, you have two options:

1. Modifications by the Original Architect: Work directly with the original architect to purchase a modified digital concept, then forward it to your local architect to order the construction documents.

2. Modifications by Your Local Architect: Purchase the digital concept as-is, work with your local architect to make changes, and then proceed with ordering the construction documents.

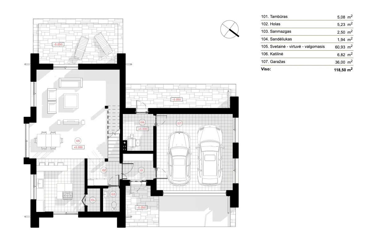
Floor Plans
First Floor
83682R - First Floor
Second Floor
83682R - Second Floor
Full Specs & Features
Area
First Floor: 83 m²
Second Floor: 65 m²
Third Floor: 0 m²
Basement: 0 m²
Total Heated: 147 m²
Dimensions
Depth 13.56 m
Width 16.73 m
Height 7.75 m
Exterior Wall Framing
Wood-framed
Ceramic Block
Aerated Concrete Block
Calcium silicate block
Exterior Wall Materials
Stone/Brick Veneer
Wood
Rooms
Full bathrooms : 1
Half bathrooms : 1
Bedrooms : 2
Utility room
Laundry
Walk In Closet
Foundation
Piling
Slab
Block Stem Wall
Concrete Stem Wall
Architectural Style
Barn
Contemporary
European
Modern
Scandinavian
Exterior Features
Deck
Floor-to-Ceiling Windows
Interior Features
Laundry Second Floor
Second Floor Master
Clustered Bedrooms
Open Floor Plan
Large Family Room (>270 ft²)
Large Kitchen (>130 ft²)
Kitchen and Dining
Walk-in Pantry
Breakfast bar
Breakfast Nook
Island
Garage
9: 36 m²
Cars: 2
Attached
Front Entry
Roof
Roof Area: 0.00m²
Gable
Skylight
Ridge perpendicular to street
Roof Pitch : 6/12 (26°)
Architect
NPS projektai NPS projektai Architecture Firm country with code lt Lithuania
country with code lt Lithuania
Šiauliai City Municipality, Šiauliai, Tilžės g. 151 (II aukštas)
Plan Package

The house plan might not adhere to the building codes of your country.

To ensure the house plan complies with your country’s building codes, you need to purchase the digital concept from the original architect and choose a local architect below to prepare the construction documents.

Digital Concept plan_plan_cad_owner_country_desc
C$1733
Subtotal
Local Architects
Offers from your local architects who are ready to develop construction documents based on the digital concept.
 

 

 

Canada, British Columbia, Vancouver
1178.56 C$