Construction documents are prepared for the following countries:

House Plan: 6373 ft², 2 Stories, 5 Beds, Home Office, 5 Baths, Open Floor Plan, 3-Car Garage

Plan
27716R
Complete
Signed & Sealed
DC Available
Key Specs
592
Total Heated m²
5 + 0
Baths + 1/2 Baths
5 + 1
Beds + Home Office
3
Cars
Need to make some changes?

This house plan can be modified to fit your family’s lifestyle and your lot’s specifics.

The architect of this plan is not from your country.

If you would like to modify this house plan, you have two options:

1. Modifications by the Original Architect: Work directly with the original architect to purchase a modified digital concept, then forward it to your local architect to order the construction documents.

2. Modifications by Your Local Architect: Purchase the digital concept as-is, work with your local architect to make changes, and then proceed with ordering the construction documents.

Floor Plans
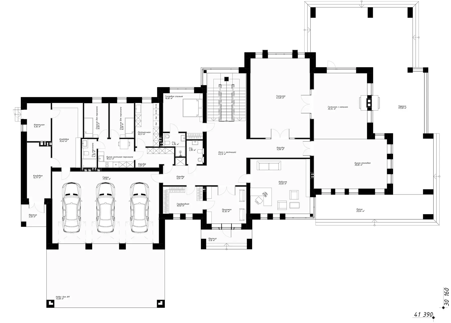
First Floor
27716R - First Floor
Second Floor
27716R - Second Floor
Full Specs & Features
Area
First Floor: 362 m²
Second Floor: 230 m²
Third Floor: 0 m²
Basement: 0 m²
Bonus: 0 m²
Total Structure: 0 m²
Total Heated: 592 m²
Dimensions
Depth 30.16 m
Width 41.39 m
Exterior Wall Framing
Ceramic Block
Aerated Concrete Block
Brick
Calcium silicate block
Exterior Wall Materials
Brick
Wood
Rooms
Full bathrooms : 5
Half bathrooms : 0
Bedrooms : 5
Utility room
Exercise Room
Laundry
Entry
Home Office
Storage
In-Law Suite
Walk In Closet
Foundation
Slab
Concrete Stem Wall
Architectural Style
Luxury
Mid Century
Prairie
Traditional
Exterior Features
Balcony
Outdoor Fireplace
Covered Rear Porch
Patio
Portico
Covered Side Porch
Large Windows
2-Sided Fireplace
Floor-to-Ceiling Windows
Interior Features
Laundry On Main Floor
Fireplace in Family Room
Second Floor Master
2 Master Suites
Sitting Area
Split Bedrooms
Open Floor Plan
Large Family Room (>270 ft²)
Large Kitchen (>130 ft²)
Kitchen and Dining
Breakfast bar
Breakfast Nook
Island
Garage
9: 78 m²
Cars: 3
Attached
Front Entry
Roof
Roof Area: 0.00m²
Hip & Valley
Architect
Stanislav Garder Stanislav Garder Residential Architect
Kazakhstan
Kazakhstan
Almaty, Almaty
Plan Package

The house plan might not adhere to the building codes of your country.

To ensure the house plan complies with your country’s building codes, you need to purchase the digital concept from the original architect and choose a local architect below to prepare the construction documents.

Digital Concept Delete key
C$547.74
Subtotal