4-Bedroom, 1316 SQ M Barn Plan with Deck
opis techniczny
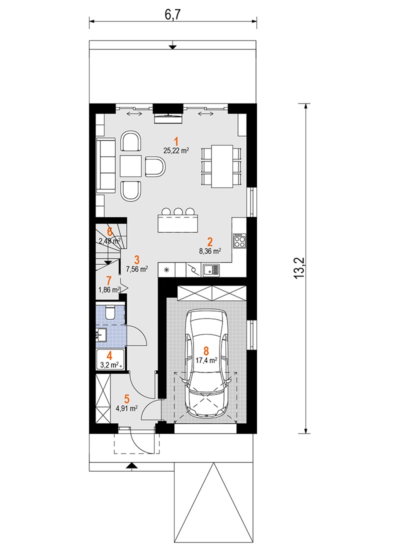
rzuty wszystkich kondygnacji
rzut więźby dachowej
rzut dachu
przekroje
elewacje
projekt konstrukcji
projekt instalacji sanitarnych
projekt instalacji elektrycznej
projekt instalacji wentylacji mechanicznej
teczka do przechowywania dokumentacji projektowej
dziennik budowy
tablicę informacyjną na budowę - po otrzymaniu projektu domu i wypełnieniu ankiety
zgodę na wprowadzenie zmian do projektu
dokumentację projektową w plikach pdf
This house plan can be modified to suit your family's lifestyle and/or your lot specifics.
If you want to modify a plan from a foreign architect, you have two options:
You finalize the plan with its architect (if the language barrier is not a problem), and then buy a modified electronic editable CAD file to give it to your local architect.
or
Buy a CAD file from the plan architect, give the file to your local architect, modify the plan with them, and order the construction documents.

