Construction documents are prepared for the following countries:

House Plan: 1759 ft², 1 Story, 3 Beds, Home Office, 2 Baths, Open Floor Plan, 2-Car Garage

Plan
12971R
Complete
Signed & Sealed
DC Available
Key Specs
163
Total Heated m²
2 + 0
Baths + 1/2 Baths
3 + 1
Beds + Home Office
2
Cars
111

222

Need to make some changes?

This house plan can be modified to fit your family’s lifestyle and your lot’s specifics.

The architect of this plan is not from your country.

If you would like to modify this house plan, you have two options:

1. Modifications by the Original Architect: Work directly with the original architect to purchase a modified digital concept, then forward it to your local architect to order the construction documents.

2. Modifications by Your Local Architect: Purchase the digital concept as-is, work with your local architect to make changes, and then proceed with ordering the construction documents.

Floor Plans
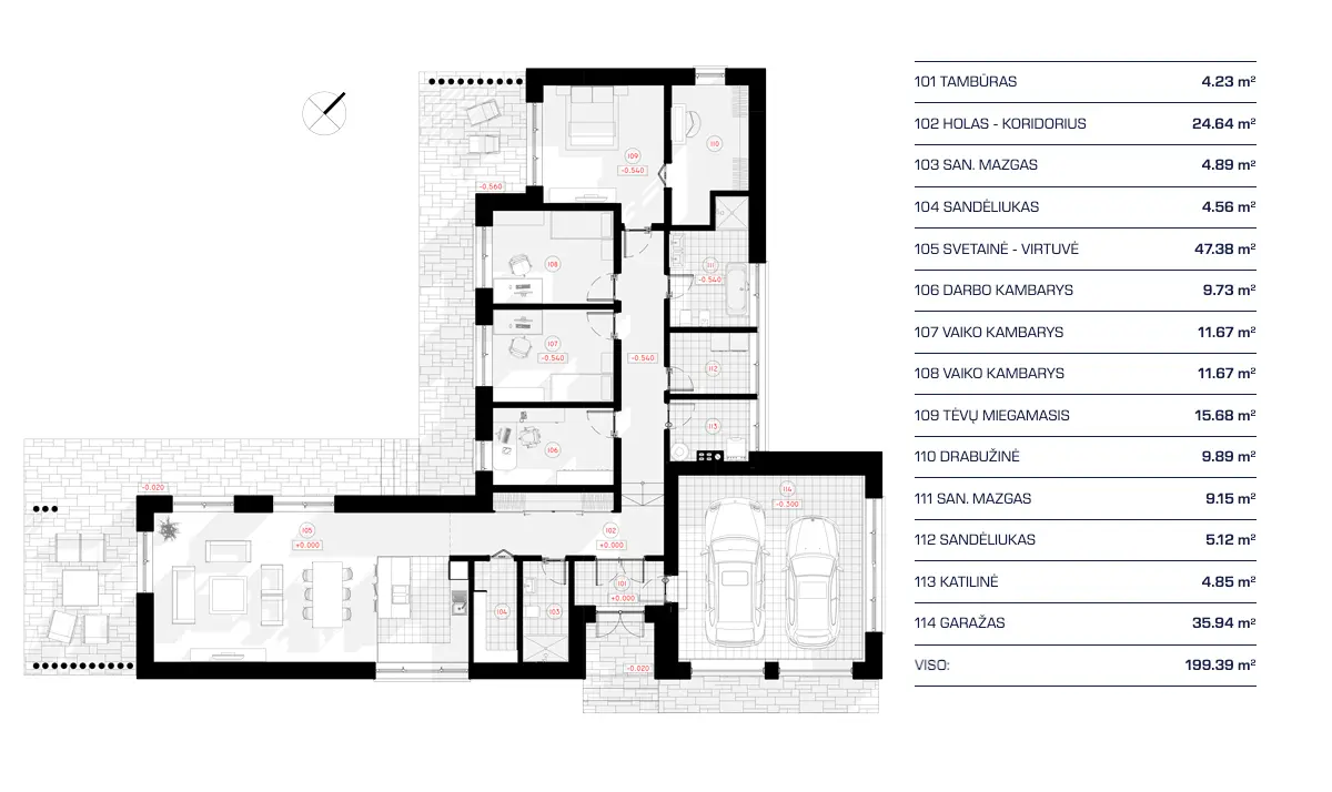
First Floor
12971R - First Floor
Full Specs & Features
Area
First Floor: 163 m²
Second Floor: 0 m²
Third Floor: 0 m²
Basement: 0 m²
Total Heated: 163 m²
Dimensions
Depth 19.44 m
Width 27.34 m
Height 5.71 m
Exterior Wall Framing
Wood-framed
Ceramic Block
Aerated Concrete Block
Calcium silicate block
Exterior Wall Materials
Stone/Brick Veneer
Stucco
Rooms
Full bathrooms : 2
Half bathrooms : 0
Bedrooms : 3
Utility room
Laundry
Home Office
Walk In Closet
Foundation
Piling
Slab
Block Stem Wall
Concrete Stem Wall
Architectural Style
Contemporary
European
Minimalism
Modern
Exterior Features
Deck
Large Windows
Floor-to-Ceiling Windows
Interior Features
Laundry On Main Floor
Main Floor Master
Clustered Bedrooms
Open Floor Plan
Large Family Room (>270 ft²)
Large Kitchen (>130 ft²)
Kitchen and Dining
Walk-in Pantry
Breakfast Nook
Island
Garage
9: 36 m²
Cars: 2
Front Entry
Roof
Roof Area: 0.00m²
Flat
Architect
NP5 NP5 Design-Build Firm country with code lt Lithuania
country with code lt Lithuania
Šiauliai City Municipality, Šiauliai, Kreivoji g. 7
Plan Package

The house plan might not adhere to the building codes of your country.

To ensure the house plan complies with your country’s building codes, you need to purchase the digital concept from the original architect and choose a local architect below to prepare the construction documents.

Digital Concept Delete key
$1500
Subtotal
Local Architects
Offers from your local architects who are ready to develop construction documents based on the digital concept.
 

 

 

Canada, British Columbia, Vancouver
1307.6 C$
How much will it cost to build?
Cost-to-Build Report
included in the plan price
This report will provide you with cost estimates based on location and building materials.